Trilocale in vendita

Putignano, Via Tenente F. Pagliarulo
€ 89.000
Prezzo aggiornato
3 locali 3 locali
90 Mq 90 Mq
1 bagno 1 bagno

Trilocale in vendita

Putignano, Via Tenente F. Pagliarulo

Descrizione annuncio

In zona San Filippo proponiamo in vendita un appartamento al piano rialzato, situato in una palazzina recentemente rinnovata grazie agli interventi del Superbonus 110%. Lo stabile si presenta in ottime condizioni e beneficia di importanti miglioramenti energetici.

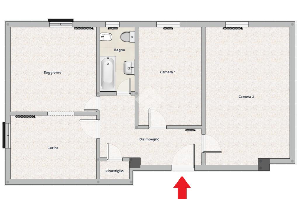
L’abitazione presenta una disposizione semplice e funzionale: dall’ingresso si accede al disimpegno che conduce alla cucina separata, al soggiorno, al bagno, alle due camere da letto e al ripostiglio. Gli ambienti sono ben proporzionati e offrono una base versatile per riorganizzare gli spazi secondo le proprie esigenze, e con la possibilità di avere un doppio servizio.

La pianta regolare permette una facile personalizzazione e offre interessanti possibilità di aggiornamento, qualora si desiderasse rinnovare gli interni o ottimizzare la distribuzione.

Grazie ai lavori eseguiti sulla palazzina, la proprietà è già dotata di infissi in doppio vetro, vasistas, tapparelle elettriche, porta blindata, caldaia recente e cappotto termico esterno, elementi che contribuiscono a un ottimo livello di efficienza energetica.

Una soluzione funzionale, con importanti interventi esterni già realizzati e ottimo potenziale di personalizzazione.

Mostra tutto

Nelle vicinanze

Trasporto pubblico Trasporto pubblico
Putignano
Putignano
430 m
Filben S.r.l.
Filben S.r.l.
2,5 Km
Scuole Scuole
Scuola Media Parini
280 m
Polo Liceale "Majorana Laterza
550 m
Scuola Elementare Via Roma
700 m
Scuola Media "Stefano da Putignano"
1,3 Km
Farmacia Farmacia
Farmacia Palazzo
490 m
Farmacia
840 m
Ospedali Ospedali
Pronto Soccorso Ospedale S. M. Angeli
310 m
Ospedale Santa Maria Degli Angeli
310 m
Ospedale S. M. Angeli
350 m
Supermercati Supermercati
Despar
820 m
Ristoranti Ristoranti
Pizza Go Go
370 m
Scinuà
660 m
Osteria
730 m
Mostra tutto

Caratteristiche

Rif.:
61141482
Piano:
1 di 3 con ascensore (Piano rialzato)
Camere da letto:
2
Arredamento:
Assente
Condizionamento:
Assente
Ascensore:
Mostra tutto
Prezzo Prezzo
€ 89.000
Rata mutuo Rata mutuo
€ 419 / mese
Spese annue Spese annue
€ 330
Proponi il tuo prezzoProponi il tuo prezzo

Classe Energetica

C
C
C
C
C
C
C
C
C
EP globale non rinnovabile:
109.51 kW h/m² anno
EP globale rinnovabile:
1.07 kW h/m² anno
EP invernale del fabbricato:
EP estiva del fabbricato:
Anno di costruzione:
1973
Riscaldamento:
Autonomo
Tipo impianto:
A radiatori
Tipo alimentazione:
Metano

Prezzo ridotto di €1 (10%%)

Ti interessa visionare l'immobile?

Fissa un appuntamento  Fissa un appuntamento

Richiedi informazioni

Clicca su Leggi per aprire l'informativa
* Questi campi sono obbligatori

Calcola il tuo mutuo

Semplice e senza impegno
Anticipo

( % )
Mutuo

( % )

pochi semplici passi

inserisci i tuoi dati
Questionario completato
Grazie per aver richiesto un appuntamento senza impegno con un nostro Consulente del Credito e Assicurativo.

Hai inserito correttamente tutti i dati necessari e a breve riceverai una e-mail con un link da convalidare per inviare i tuoi dati.
Affiliato
Studio San Domenico Sas
Via Estramurale a Mezzogiorno, 198 70017 Putignano (BA)

Il nostro staff


  • Francesco Linzalone
    Affiliato

  • Arianna Lopez
    Coordinatrice

  • Angela Polignano
    Collaboratrice
Via Estramurale a Mezzogiorno, 198 70017 Putignano (BA)
Zona: Putignano
Mostra su mappa
Orari: lunedi-venerdi 09:00-13:00 16:00-20:30 sabato 09:00-13:00
Affiliato
Studio San Domenico Sas
Via Estramurale a Mezzogiorno, 198 70017 Putignano (BA)

2026 Tecnocasa Franchising S.p.A. - P. IVA 08365160152 - Via Monte Bianco 60/A 20089 Rozzano (MI). Ogni agenzia ha un proprio titolare ed è autonoma. Privacy policy | Policy utilizzo | Cookie policy